Hệ thống showroom               72 - 74 Nguyễn Cơ Thạch (Toà nhà Sarimi), Khu đô thị Sala, Hồ Chí Minh               23 Nguyễn Lương Bằng (Toà nhà Greenview), Khu đô thị Phú Mỹ Hưng, Hồ Chí Minh

Biệt Thự ZeitGeist Nhà Bè – Gs Metro City

Lựa chọn trở về Việt Nam sau nhiều năm sinh sống và làm việc tại Mỹ, biệt thự ZeitGeist Nhà Bè là một trong những dự án mà anh Trung đặc biệt quan tâm đầu tư, bởi đây sẽ là nơi gắn bó của gia đình anh. Sau khoảng 8 tháng tìm hiểu nhiều đơn vị, anh Trung đã tin tưởng chọn Trường Thắng làm tổng thầu thiết kế và thi công không gian sống của mình. 

Không chỉ vậy, trong quá thời làm việc cùng Trường Thắng, anh Trung dần trở thành khách hàng thân thiết với tình yêu sản phẩm Trường Thắng và thường xuyên giới thiệu bạn bè và người thân đến showroom Trường Thắng để trải nghiệm.

I. Tổng quan dự án 

  • Diện tích: ~ 336m2
  • Loại hình: Biệt thự
  • Vị trí: Dự án ZeitGeist Nhà Bè (Gs Metro City)
  • Hạng mục: Tổng thầu thiết kế, thi công nội thất
biet-thu-zeitgeist-nha-be-gs-metro-city-2

Dự án ZeitGeist Nhà Bè nằm trên mặt tiền đường chính Nguyễn Hữu Thọ của Nam Sài Gòn, trải dài qua 2 xã Nhơn Đức và Phước Kiểng thuộc trung tâm Nhà Bè, TP.HCM, đem lại khả năng kết nối tuyệt vời.

biet-thu-zeitgeist-nha-be-gs-metro-city-1

Biệt thự ZeitGeist Nhà Bè mà Trường Thắng đang đảm nhận nằm ở vị trí đắc địa trong dự án.

II. Hiện trạng đang thi công

Biệt thự Zeitgeist Nhà Bè được bàn giao với phần ngoại thất hoàn thiện. Trong khi không gian bên trong vẫn còn thô sơ, gia chủ sẽ tự hoàn thiện theo nhu cầu và sở thích riêng.

biet-thu-zeitgeist-nha-be-gs-metro-city-hien-trang-1

Hiện trạng mặt bằng dự án biệt thự Zeitgeist Nhà Bè.

Qua khoảng 8 tháng tìm kiếm các đơn vị đối tác, gia chủ đã tin tưởng lựa chọn Trường Thắng làm đơn vị tổng thầu thiết kế thi công nội thất.

biet-thu-zeitgeist-nha-be-gs-metro-city-hientrang

Dự án trong những ngày đầu triển khai.

biet-thu-zeitgeist-nha-be-gs-metro-city-hien-trang

Hiện trạng công trình được Trường Thắng thi công. Các tiêu chí an toàn – chất lượng – hiệu quả luôn được đặt lên hàng đầu.

III. Giải pháp thiết kế nội thất từ Trường Thắng

Biệt thự Zeigeist Nhà Bè được thiết kế theo phong cách hiện đại thiên về tối giản. Với mong muốn tạo nên không gian gần gũi và ấm cúng, gỗ tự nhiên được chọn làm vật liệu chủ đạo. Ngoài ra, Trường Thắng ứng dụng thiết kế mở, tận dụng ánh sáng tự nhiên để tạo nên cảm giác rộng rãi, thoải mái.

Mỗi khu vực đều được chăm chút tỉ mỉ với nội thất cao cấp, sử dụng các gam màu trung tính và vật liệu tự nhiên, nhằm mang lại sự sang trọng mà vẫn giữ được sự gần gũi. Phong cách thiết kế này không chỉ đáp ứng nhu cầu sinh hoạt của gia đình mà còn phản ánh phong cách cá nhân của gia chủ.

1. Không gian tầng trệt
biet-thu-zeitgeist-nha-be-gs-metro-city-lau-1a

Mặt bằng hiện trạng ban đầu của tầng trệt biệt thự Zeitgeist Nhà Bè.

biet-thu-zeitgeist-nha-be-gs-metro-city-lau-1b

Mặt bằng nội thất tầng trệt biệt thự Zeitgeist Nhà Bè được Trường Thắng bố trí.

Tầng trệt của biệt thự Zeitgeist Nhà Bè với phòng khách nối liền với khu vực ăn uống và bếp, tạo nên một không gian liền mạch và thông thoáng.

biet-thu-zeitgeist-nha-be-gs-metro-city 3

Phòng khách

Ở khu vực cửa ra vào, phòng khách nổi bật với sự kết hợp hài hòa giữa sofa, bàn trà và tủ tivi. Bàn trà Floating và tủ tivi tối giản kết hợp cùng sofa tạo nên không gian thanh lịch và dễ chịu.

biet-thu-zeitgeist-nha-be-gs-metro-city 5

Không chỉ vậy, hiệu ứng trần, tường, sàn và thiết kế tận dụng ánh sáng tự nhiên tạo nên một không gian thoải mái cho cả gia đình.

biet-thu-zeitgeist-nha-be-gs-metro-city 4

Phòng ăn và bếp

Theo mặt bằng dự án, đây là không gian mặt tiền của biệt thự. Tuy nhiên, để thuận tiện cho sinh hoạt và phù hợp với nhu cầu của gia đình, nơi đây được chuyển đổi công năng thành khu vực bếp và phòng ăn liền kề, nối thông với phòng khách.

Thiết kế tinh tế còn được nâng cao với việc bố trí tủ trưng bày, nơi lưu trữ rượu hoặc các món đồ sưu tập của gia đình, tạo điểm nhấn vừa sang trọng vừa cá nhân hóa không gian.

biet-thu-zeitgeist-nha-be-gs-metro-city 6

Trải nghiệm sản phẩm thực tế tại showroom Trường Thắng Phú Mỹ Hưng, anh Trung đặc biệt ấn tượng với độ hoàn thiện tinh xảo của sản phẩm. Ấn tượng này đã khiến anh quyết định yêu cầu tương tự cho bàn ghế ăn nhà mình.

biet-thu-zeitgeist-nha-be-gs-metro-city 7

Bàn ăn gỗ tự nhiên Edge thiết kế hiện đại, thanh lịch với những chi tiết bo cong mềm mại. Phối cùng ghế Cora, đây là không gian tuyệt vời cho những bữa ăn gắn kết gia đình.

Gian bếp được thiết kế dựa trên ngôn ngữ thiết kế tổng thể của không gian. Đồng thời được trang bị đầy đủ các công năng và thiết bị phù hợp với thói quen của gia đình.

biet-thu-zeitgeist-nha-be-gs-metro-city 8

Bàn đảo liền kề không chỉ là nơi các thành viên quây quần chuẩn bị bữa ăn mà còn là điểm nhấn trong thiết kế, tạo không gian sinh hoạt đa năng và tiện nghi.

biet-thu-zeitgeist-nha-be-gs-metro-city 9

2. Không gian tầng 2
biet-thu-zeitgeist-nha-be-gs-metro-city-lau-2a

Mặt bằng hiện trạng ban đầu của tầng 2 biệt thự Zeitgeist Nhà Bè.

biet-thu-zeitgeist-nha-be-gs-metro-city-lau-2b

Mặt bằng nội thất tầng 2 biệt thự Zeitgeist Nhà Bè được Trường Thắng bố trí.

Phòng ngủ master

Phòng ngủ master của biệt thự được thiết kế tinh tế và sang trọng. Với tông màu trung tính làm chủ đạo, đây là không gian mang lại cảm giác bình yên và thư giãn cho gia chủ sau một ngày dài.

Trung tâm của căn phòng là giường ngủ Harmony được bọc lớp vải chất lượng cao, tạo điểm nhấn thanh lịch cho không gian.

biet-thu-zeitgeist-nha-be-gs-metro-city 10

Ô cửa sổ được giữ nguyên từ thiết kế ban đầu của dự án, cho phép ánh sáng tự nhiên tràn ngập căn phòng. Kết hợp hệ thống đèn âm trần, không gian luôn sáng sủa mà vẫn giữ được sự ấm áp.

biet-thu-zeitgeist-nha-be-gs-metro-city 11

Phòng ngủ còn được ứng dụng tủ quần áo Urban hiện đại, tận dụng tối đa không gian lưu trữ mà vẫn duy trì được sự gọn gàng và hài hòa với tổng thể kiến trúc.

Cùng với đó là phong cách thiết kế liên kết giữa phòng ngủ và WC tạo nên sự liền mạch và tiện lợi cho sinh hoạt hằng ngày, mà vẫn đảm bảo tính riêng tư cần thiết.

biet-thu-zeitgeist-nha-be-gs-metro-city 12

WC phòng ngủ master hướng đến sự tiện nghi và sang trọng.

Phòng ngủ 1

Phòng ngủ 1 là không gian dành cho các con nên được thiết kế thoải mái, thoáng đãng và thân thiện với trẻ nhỏ.

Trung tâm của phòng là hai giường Floating có thiết kế nhỏ gọn, gần gũi. Giường được bố trí song song giúp tối ưu hóa không gian sử dụng. Chất liệu gỗ tự nhiên cùng thiết kế thân thiện và an toàn với trẻ em mang lại cảm giác dễ chịu cho bé.

biet-thu-zeitgeist-nha-be-gs-metro-city 13

Giữa hai giường là tủ đầu giường Latus, nơi lưu trữ tiện lợi cho các vật dụng cá nhân của trẻ.

Ngoài ra, phòng được trang trí kệ treo tường, nơi trưng bày các vật dụng yêu thích của bé, góp phần làm sinh động cho không gian.

biet-thu-zeitgeist-nha-be-gs-metro-city 14

Các gam màu nhẹ nhàng, tinh tế từ nội thất đến phụ kiện trang trí không chỉ là nổi bật không gian mà còn kích thích sự sáng tạo và phát triển trí tuệ cho trẻ.

biet-thu-zeitgeist-nha-be-gs-metro-city 15

Lối đi vào WC được ứng dụng tủ quần áo Urban thuận tiện cho sinh hoạt của bé và tối ưu hóa diện tích lưu trữ.

3. Không gian tầng 3
biet-thu-zeitgeist-nha-be-gs-metro-city-lau-3a

Mặt bằng hiện trạng ban đầu của tầng 3 biệt thự Zeitgeist Nhà Bè.

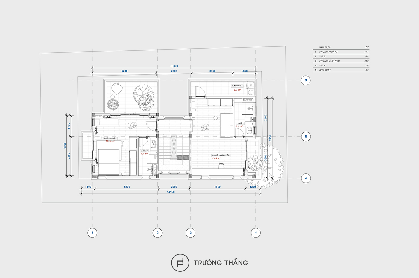
biet-thu-zeitgeist-nha-be-gs-metro-city-lau-3b

Mặt bằng nội thất tầng 3 biệt thự Zeitgeist Nhà Bè được Trường Thắng bố trí.

Phòng làm việc

Trường Thắng khéo léo kết hợp các giải pháp thiết kế để tạo nên không gian làm việc đa năng, linh hoạt và tiện nghi. Bàn làm việc đủ rộng để phục vụ cho công việc, các ngăn kéo dưới bàn cung cấp không gian lưu trữ tiện lợi giúp giữ cho khu vực làm việc luôn gọn gàng.

biet-thu-zeitgeist-nha-be-gs-metro-city 18

Phần còn lại của phòng làm việc được bố trí thành không gian lưu trữ và thư giãn. Kết hợp hài hoà giữa chức năng làm việc và khu vực thư giãn, đây trở thành nơi tuyệt vời sau những giờ làm việc căng thẳng với kệ sách và ghế đọc sách thoải mái.

Bố trí nội thất không chỉ đáp ứng được nhu cầu chức năng mà còn mang đến vẻ đẹp hiện đại và thoải mái cho người sử dụng.

biet-thu-zeitgeist-nha-be-gs-metro-city 19

Phòng ngủ 2

Với phòng ngủ 2, Trường Thắng sử dụng giường ngủ Refill và bố trí tủ quần áo cánh lùa và bàn kết hợp. Không gian này ít được sử dụng nhưng thiết kế vẫn đảm bảo sự tiện nghi và hài hòa với tổng thể của không gian.

biet-thu-zeitgeist-nha-be-gs-metro-city 16

biet-thu-zeitgeist-nha-be-gs-metro-city 17

Liên hệ Trường Thắng để được tư vấn giải pháp không gian miễn phí!

Hình thành và phát triển từ năm 2004, Trường Thắng tập trung vào việc thiết kế và sản xuất các sản phẩm nội thất văn minh, đương đại, vẻ đẹp trường tồn và kỹ thuật cao. Trường Thắng còn cam kết chế tác các sản phẩm tỉ mỉ và đẹp mắt bằng những vật liệu được tuyển chọn tốt nhất, máy móc hiện đại và thợ thủ công lành nghề.

Trường Thắng không chỉ là một thương hiệu nội thất, mà còn là một thương hiệu giúp khách hàng thể hiện được phong cách và chất lượng cuộc sống. Nếu bạn có nhu cầu thiết kế và thi công nội thất vui lòng liên hệ với chúng tôi ngay hôm nay!