Hệ thống showroom               72 - 74 Nguyễn Cơ Thạch (Toà nhà Sarimi), Khu đô thị Sala, Hồ Chí Minh               23 Nguyễn Lương Bằng (Toà nhà Greenview), Khu đô thị Phú Mỹ Hưng, Hồ Chí Minh

Biệt Thự Quận 2

Chủ nhân biệt thự tại quận 2, sau khi tham quan nhà của những doanh nhân thân thiết và biết đến chất lượng sản phẩm dịch vụ của Trường Thắng, đã tin tưởng lựa chọn Trường Thắng thiết kế và thi công hệ tủ bếp với các yêu cầu cụ thể. Mời bạn cùng tham khảo chi tiết yêu cầu sử dụng của gia chủ và giải pháp Trường Thắng mang lại qua bài viết dưới đây! 

I. Tổng quan dự án

  • Diện tích: 320m2
  • Loại hình: Biệt thự  
  • Vị trí: Quận 2, Hồ Chí Minh  
  • Hạng mục: Thiết kế thi công Tủ bếp  

Vị trí dự án biệt thự quận 2 

II. Yêu cầu từ gia chủ 

“Điều mong muốn trong tổ ấm gia đình tôi là căn bếp phải đạt được những yếu tố cao cấp, tiện nghi, logic và làm cho vợ tui luôn vui”– Chủ ngôi biệt thự Quận 2 đã chia sẻ khi đến với Trường Thắng. Tham khảo chi tiết tại đây!

Thấu hiểu khách hàng, Trường Thắng đã ứng dụng những giải pháp thông minh, đáp ứng công năng khoa học, tiện nghi. Biến hệ tủ bếp biệt thự quận 2 trở thành không gian tận hưởng niềm vui nấu nướng. Song vẫn đảm bảo yếu tố hài hoà với tổng thể không gian sống. 

III. Tổng thể không gian bếp biệt thự quận 2 

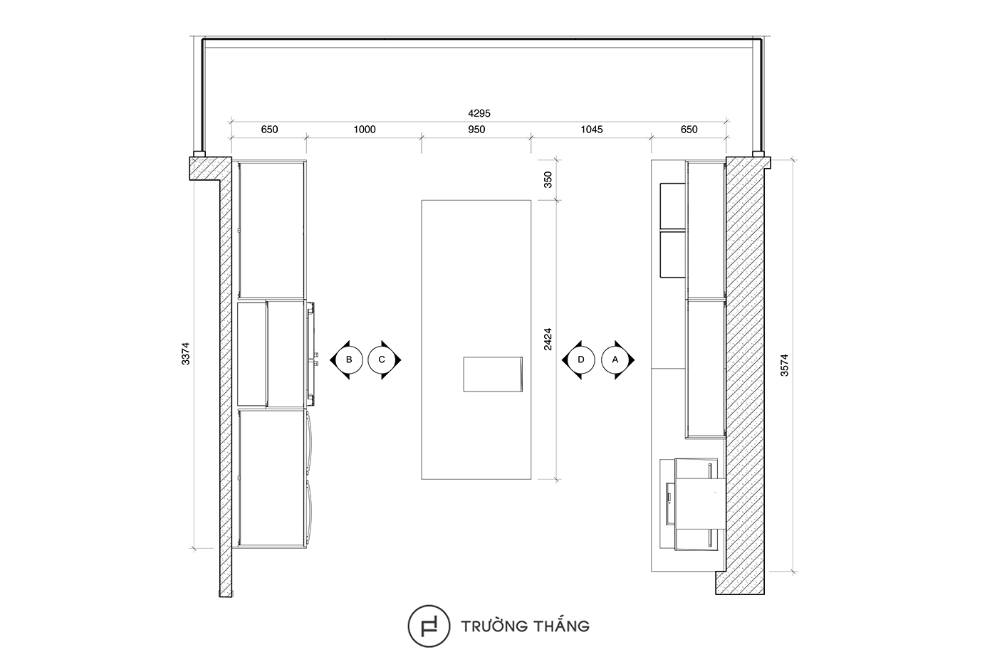
Dựa trên mặt bằng hiện trạng, Trường Thắng đã bố trí gian bếp song song kết hợp với đảo bếp. Thiết kế này không chỉ đảm bảo luồng thao tác khoa học trong bếp, tối ưu hóa không gian lưu trữ mà còn tận dụng tốt ánh sáng tự nhiên.

Với chia sẻ của gia chủ, Trường Thắng đã thiết kế hệ tủ bếp biệt thự theo ngôn ngữ BST bếp City. Nổi bật của bộ sưu tập này chính là vật liệu với màu sắc sơn lacquer bắt mắt, hiện đại.

Bản vẽ thiết kế 3D hệ tủ bếp biệt thự quận 2 

Công trình thực tế của Trường Thắng sẽ giống hệt bản vẽ 3D nhờ vào quy trình thi công chuyên nghiệp và đội ngũ kỹ thuật viên giàu kinh nghiệm. Chúng tôi sử dụng công nghệ hiện đại và giám sát chặt chẽ từng giai đoạn từ thiết kế đến hoàn thiện, đảm bảo sự chính xác và chất lượng đến từng chi tiết.

Tổng thể không gian bếp biệt thự quận 2 được Trường Thắng hoàn thiện 

IV. Giải pháp tủ bếp biệt thự của Trường Thắng  

1. Thiết kế khoa học 

Trường Thắng thiết kế không gian tủ bếp một cách khoa học, tối ưu hóa công năng sử dụng và đảm bảo tính thẩm mỹ. Chúng tôi chú trọng vào việc bố trí hợp lý các khu vực lưu trữ, sơ chế và nấu nướng. Đảm bảo luồng làm việc trong bếp luôn tiện lợi và thoải mái cho người dùng.

Không chỉ tối ưu không gian với hệ tủ bếp song song, Trường Thắng còn mở ra khu vực lưu trữ, chế biến,… ở đảo bếp. Song vẫn đảm bảo luồng di chuyển thông thoáng, giúp thao tác nấu nướng được dễ dàng.

Gian bếp hiện đại thì không thiếu những thiết bị bếp hỗ trợ tiện nghi. Tủ bếp biệt thự quận 2 được Trường Thắng tích hợp tất cả thiết bị tủ lạnh, bếp từ,… Thiết kế âm, vừa vặn, gọn gàng và vô cùng tiện lợi. Giúp tăng thêm vẻ đẹp thẩm mỹ và cảm hứng khi nấu nướng.

Toàn bộ hệ tủ bếp biệt thự hiện đại được trang bị những giải pháp công năng hiện đại.

2. Giải pháp công năng lưu trữ 

Trường Thắng đã tích hợp giải pháp phụ kiện cao cấp từ Châu Âu cho hệ tủ bếp. Tiêu biểu là hệ ngăn kéo lắp âm tủ của Blum với thành mỏng và cao. Giải pháp này giúp gia tăng không gian lưu trữ so với các tủ khác đến 40%.

Không chỉ vậy, toàn bộ tủ bếp được trang bị những giải pháp công năng hiện đại bậc nhất. Đặc biệt là hệ trợ lực điện Servo-Drive thông minh với chuyển động mượt mà. Ứng dụng vào tất cả các module như: ngăn kéo đa tầng, tay nâng dừng đa điểm,… trong hệ tủ bếp biệt thự Trường Thắng.

Tủ bếp còn được bổ sung hệ thống đèn led tác vụ. Cung cấp ánh sáng cho các thao tác làm bếp và tăng thêm tính thẩm mỹ tổng thể.

Hình thành và phát triển từ 2004, Trường Thắng chúng tôi tự hào đã đồng hành cùng hàng ngàn gian bếp đẹp tiện nghi cho người Việt. Hãy để tư vấn viên Trường Thắng được hỗ trợ bạn sở hữu gian bếp ưng ý và bền bỉ song hành, bạn nhé!

Lựa chọn Trường Thắng nghĩa là bạn lựa chọn nội thất chất lượng từ tự nhiên. Sản phẩm được chế tác công phu, R&D phù hợp sở thích và thói quen sinh hoạt của người Việt. Đáp ứng được đa dạng nhu cầu cũng như không gian ngôi nhà.