Trường Thắng tiếp tục khẳng định vị thế trong ngành nội thất cao cấp qua dự án tủ bếp biệt thự tại Bình Tân. Sau khi được nhà thầu giới thiệu và tham quan showroom, gia chủ đã lựa chọn Trường Thắng nhờ vào các giải pháp thiết kế và thi công tinh tế. Đáp ứng không gian bếp vừa sang trọng vừa phù hợp để nấu nướng và tiếp khách.

Vị trí biệt thự tại quận Bình Tân, Hồ Chí Minh
Là doanh nhân thành đạt, gia chủ biệt thự Bình Tân có nhiều trải nghiệm sống. Do đó, gia chủ có yêu cầu rất cụ thể cho không gian bếp của mình. Bếp cần kết hợp giữa thẩm mỹ hài hoà, công năng linh hoạt và các thiết bị hiện đại để vừa phục vụ cuộc sống hằng ngày vừa đáp ứng nhu cầu tiếp khách.
Trong không gian biệt thự, bếp không chỉ là nơi nấu nướng mà còn là trái tim của ngôi nhà. Nơi gắn kết các thành viên trong gia đình và là điểm lý tưởng để tổ chức những buổi tiệc ấm cúng. Với thiết kế tinh tế và bố trí hợp lý, không gian bếp biệt thự Bình Tân được Trường Thắng thiết kế theo phong cách mở. Kết nối với phòng ăn và phòng khách, tạo sự liền mạch trong không gian sống.

Vị trí khu vực bếp trong biệt thự Bình Tân, Hồ Chí Minh
Dựa trên mặt bằng và yêu cầu của gia chủ, Trường Thắng đã bố trí không gian bếp thông qua dịch vụ Design Center. Điều này không chỉ giúp gia chủ dễ dàng hình dung nội thất tổng thể và lập kế hoạch chi phí hợp lý, mà còn rút ngắn thời gian làm việc mà vẫn đảm bảo hiệu quả cao.

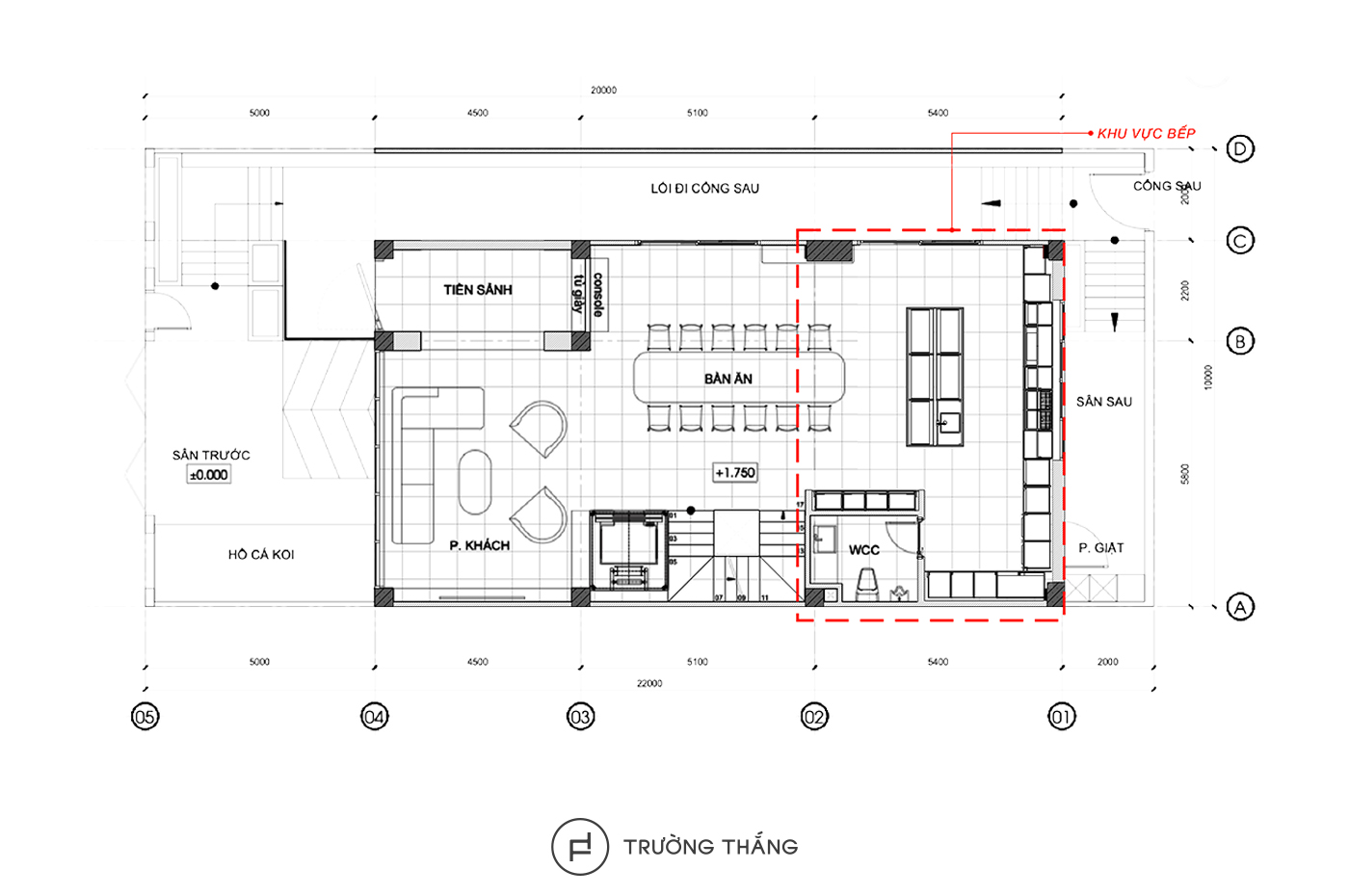
Mặt bằng hệ tủ bếp trong biệt thự Bình Tân
Gian bếp được Trường Thắng thiết kế dựa trên BST bếp City với tông màu trắng chủ đạo. Thiết kế này mang đến vẻ sang trọng, hiện đại và làm nổi bật các chi tiết tinh tế cùng chất liệu cao cấp. Tạo cảm giác rộng rãi và sạch sẽ cho không gian bếp của biệt thự. Tuy nhiên thiết kế này vẫn đảm bảo sự hài hòa với tổng thể không gian nội thất.

Tổng thể không gian bếp biệt thự Bình Tân được Trường Thắng thiết kế thi công hoàn thiện
Bếp không chỉ thể hiện phong cách sống sang trọng mà còn phải mang lại trải nghiệm sử dụng hoàn hảo. Vì vậy, Trường Thắng luôn cân bằng hoàn hảo giữa thẩm mỹ, công năng và tiện nghi. Với hệ tủ bếp Bình Tân, Trường Thắng đo ni đóng giày vừa vặn với không gian. Sự đồng nhất tạo nên vẻ ngoài tủ bếp gọn gàng, tối giản và lịch lãm.

Không gian bếp với hệ đảo lớn, cung cấp thêm khu vực bày biện cho các buổi tiệc hoặc bữa ăn ngay tại bếp.
Yếu tố đầu tiên Trường Thắng chú trọng khi thiết kế bếp chính là luồng thao tác khoa học. Bếp được phân chia thành ba khu vực chính: Lưu trữ, Sơ chế và Nấu nướng. Điều này giúp tiết kiệm thời gian di chuyển trong quá trình sử dụng. Mang lại sự tiện lợi và thoải mái cho gia chủ trong mọi hoạt động nấu nướng. Trường Thắng còn mở ra không gian lưu trữ khổng lồ với thiết kế kịch trần và đảo bếp lớn.

Tận dụng tối đa không gian, Trường Thắng đã thiết kế hệ tủ trưng bày âm tường ngay cạnh cầu thang. Không chỉ mở ra không gian lưu trữ, trưng bày, hệ tủ còn trở thành điểm nhấn sang trọng cho bếp với thiết kế cánh kính hiện đại và hệ thống chiếu sáng tinh tế.

Ngoài ra, Trường Thắng còn tích hợp các thiết bị hiện đại cho không gian bếp. Mang lại trải nghiệm nấu nướng tiện nghi cho gia chủ và gia đình. Và đây là không gian bếp đẳng cấp, nơi gia chủ tự hào giới thiệu và tiếp đón những vị khách quý.

Lựa chọn Trường Thắng nghĩa là bạn lựa chọn nội thất chất lượng từ tự nhiên. Sản phẩm được chế tác công phu, R&D phù hợp sở thích và thói quen sinh hoạt của người Việt. Đáp ứng được đa dạng nhu cầu cũng như không gian ngôi nhà.